Depto. Olivos, Vicente López
2018 - Reforma
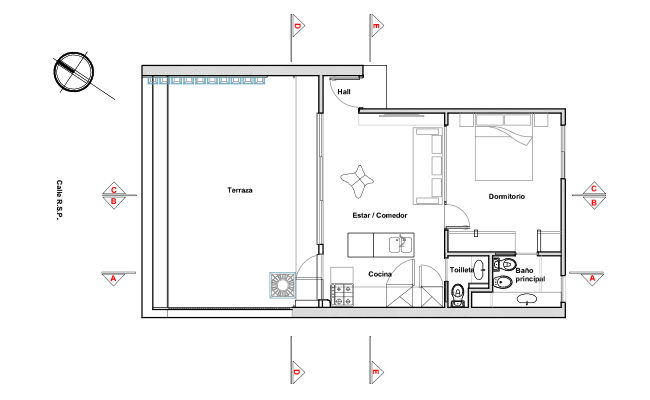
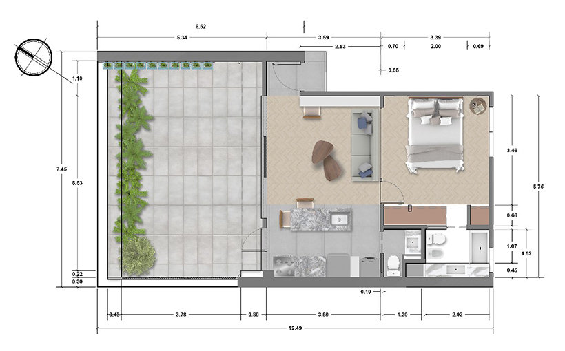
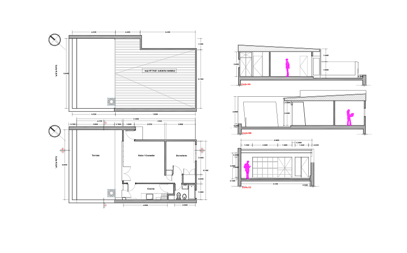
Reforma integral 80 m2 Rooftop
2018 - Reforma
Reforma integral 80 m2 Rooftop






Todas las estrategias de uso del espacio y el empleo de materiales con criterios de sustentabilidad.





Recuperar el antiguo piso de madera, fue un objetivo desde el primer momento.
Tomar conciencia y diseñar a partir de materiales reciclados.

Disposición del espacio antes de la reforma.
