Oficinas Corporativas Upl Buenos Aires
2019 - Espacio de trabajo
Mezclar el placer y el trabajo - Bienvenido a la nueva sede de UPL Argentina Dirección: Torre Olivos 1 - 3 P – Dr. Nicolás Repetto 3653, Olivos, Buenos Aires Superficie: 800m2
2019 - Espacio de trabajo
Mezclar el placer y el trabajo - Bienvenido a la nueva sede de UPL Argentina Dirección: Torre Olivos 1 - 3 P – Dr. Nicolás Repetto 3653, Olivos, Buenos Aires Superficie: 800m2

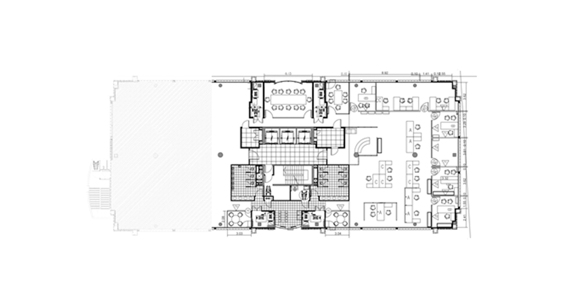
La propuesta, prácticamente no tiene tabiquería, son espacios la mayoría conformados con mobiliario, con posibilidad de poder tener diferentes modos de sentado y reunión.
La idea pretende transformar la clásica cultura de despachos cerrados en una alternativa abierta, móvil, colaborativa y ágil para un equipo más dinámico.
Se proponen numerosas posibilidades para diferentes tipos de trabajo, incluidas las zonas sociales.
Hay varios espacios reservados para trabajar de manera concentrada en tareas individuales, pero su uso es temporal, alternando con los espacios colaborativos.






EL Grupo UPL luego de la adquisición de Arysta Life Science, se consolidó como una de las cinco primeras empresas globales de soluciones agrícolas.
Y requerían un espacio de trabajo para el comienzo de una nueva etapa.
Deseos y necesidades específicas del cliente
•Mayor claridad, más luminoso, más abierto
•Abierto a utilización de colores
•Posibilidad de plantear perímetro libre, sin oficinas, en bordes
Capacidad para 135 personas. Entre puestos de trabajo y salas especiales.

Se propone un volumen independiente de color vibrante para darle la bienvenida al usuario y trasmitir la energía de la empresa en su nueva etapa.


Se apostó por la reutilización de parte de su mobiliario y parte de su arquitectura existente, como gesto para combatir la cultura del consumismo.
Pequeñas acciones pueden garantizar un ahorro importante en recursos naturales del planeta.




